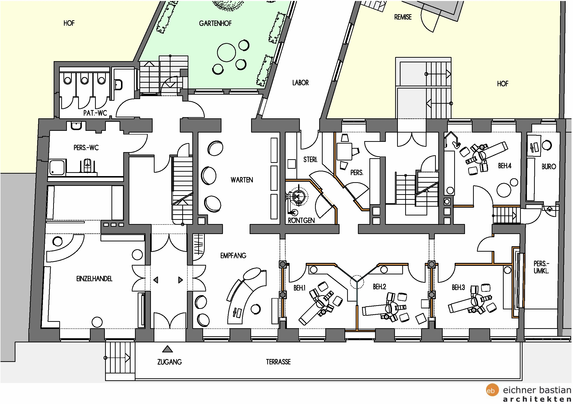
Ausbau einer Zahnarztpraxis am Platz der Einheit
Standort: Potsdam
Bauherr: –
Baujahr: 2007
Bausumme: –
Weitere Arztpraxen
Hautarztpraxis Lee & Stefaniak
Berlin-Prenzlauer Berg
Kosmetikinstitut Lee & Stefaniak
Berlin-Prenzlauer Berg
Ausbau einer Orthopädiepraxis
Berlin-Zehlendorf
Kinderwunschzentrum
Berlin-Charlottenburg
Praxis Soorstraße
Berlin-Charlottenburg
Zahnärzte Teltow
Berlin-Zehlendorf
KFO Schlieperstraße
Berlin-Tegel
Dialysepraxis Oberbaum-City
Berlin-Friedrichshain
Zeit für schöne Zähne
Berlin-Frohnau









