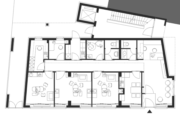
Ausbau einer Zahnarztpraxis in Westend
Standort: Berlin-Charlottenburg
Bauherr: –
Baujahr: 2001
Renovierungsjahr: 2019
Weitere Arztpraxen
Kinderwunschzentrum
Berlin-Charlottenburg
Zahnärzte Teltow
Berlin-Zehlendorf
Zahnarztpraxis Potsdam
Berlin-Charlottenburg
KFO Schlieperstraße
Berlin-Tegel
Dialysepraxis Oberbaum-City
Berlin-Friedrichshain
Zeit für schöne Zähne
Berlin-Frohnau
Hautarztpraxis Lee & Stefaniak
Berlin-Prenzlauer Berg
Kosmetikinstitut Lee & Stefaniak
Berlin-Prenzlauer Berg
Ausbau einer Orthopädiepraxis
Berlin-Zehlendorf








