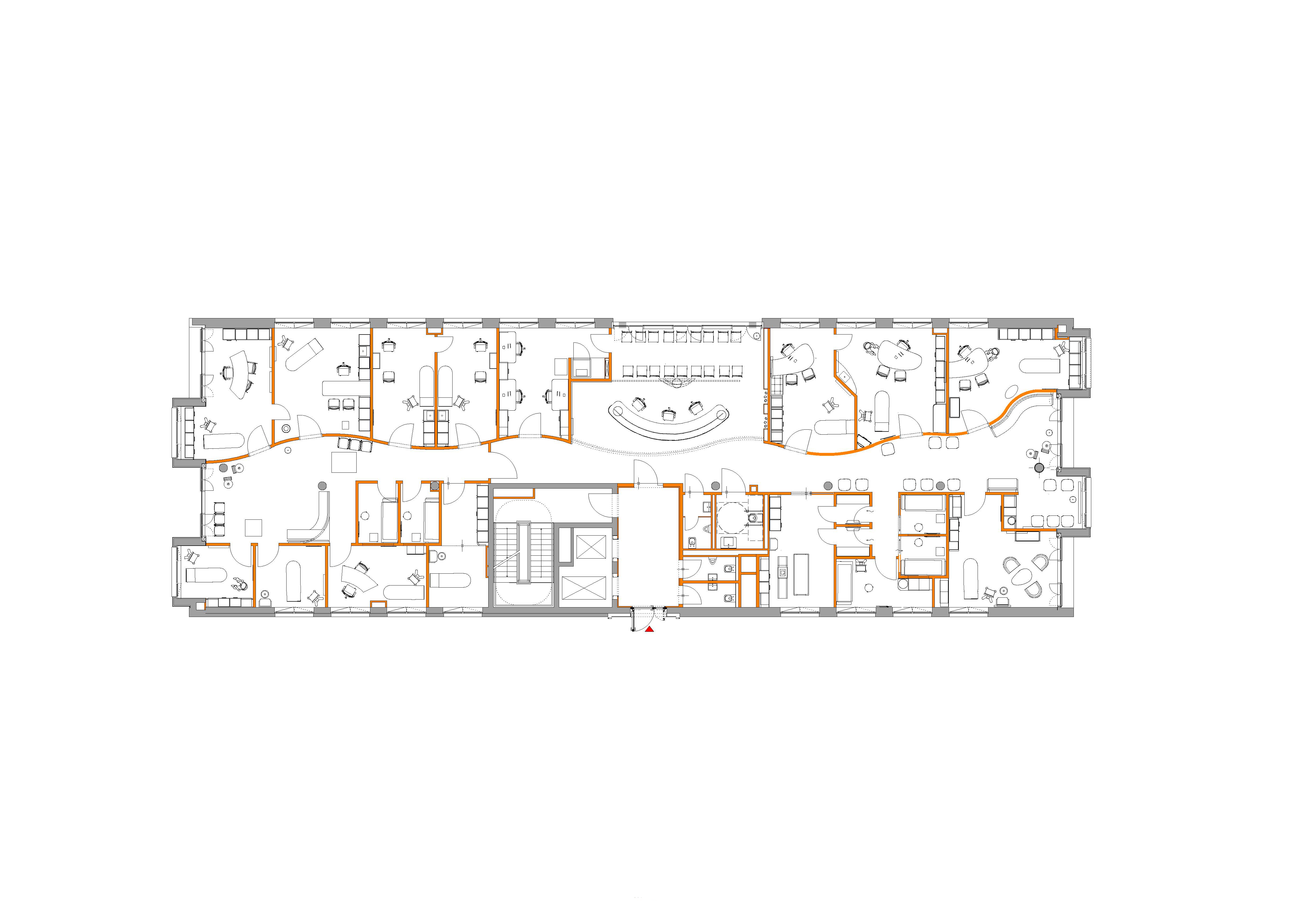
Ausbau einer Orthopädiepraxis in Berlin-Zehlendorf

Ausbau einer Orthopädiepraxis in Berlin-Zehlendorf

Standort: Berlin-Zehlendorf

Bauherr:

Jahr:

Bausumme:

Weitere Arztpraxen

Praxis Soorstraße

Berlin-Charlottenburg

Zahnärzte Teltow

Berlin-Zehlendorf

Zahnarztpraxis Potsdam

Berlin-Charlottenburg

Dialysepraxis Oberbaum-City

Berlin-Friedrichshain

Hautarztpraxis Lee & Stefaniak

Berlin-Prenzlauer Berg

Kosmetikinstitut Lee & Stefaniak

Berlin-Prenzlauer Berg

Kinderwunschzentrum

Berlin-Charlottenburg