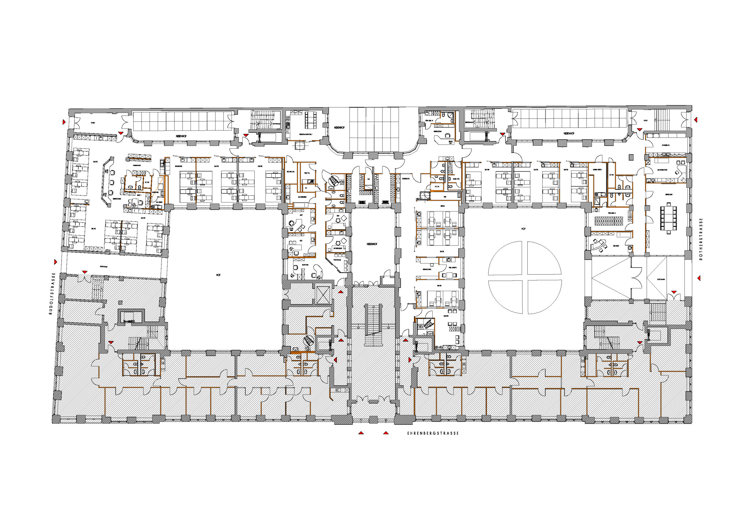
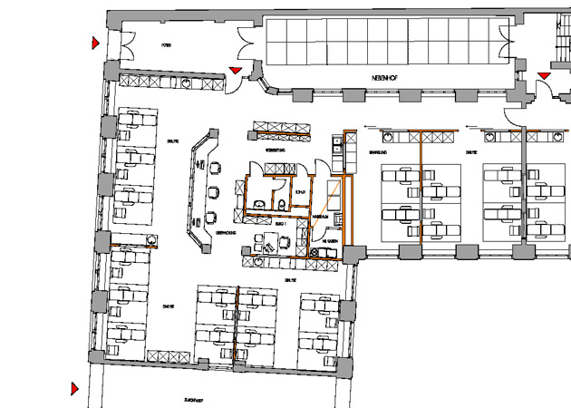
Dialysepraxis in der Oberbaum-City
Umbau und Modernisierung im Gesundheitsbereich
Standort: Berlin-Friedrichshain
Bauherr: –
Jahr: 2009
Bausumme: –
Weitere Arztpraxen
Hautarztpraxis Lee & Stefaniak
Berlin-Prenzlauer Berg
Kosmetikinstitut Lee & Stefaniak
Berlin-Prenzlauer Berg
Ausbau einer Orthopädiepraxis
Berlin-Zehlendorf
Kinderwunschzentrum
Berlin-Charlottenburg
Praxis Soorstraße
Berlin-Charlottenburg
Zahnärzte Teltow
Berlin-Zehlendorf
Zahnarztpraxis Potsdam
Berlin-Charlottenburg
KFO Schlieperstraße
Berlin-Tegel
Zeit für schöne Zähne
Berlin-Frohnau








